Moderne Lagerfläche mit flexiblen Erweiterungsmöglichkeiten
Entdecken Sie diese vielseitig nutzbare Lagerfläche im Erdgeschoss, die sich ideal für Unternehmen aus Handel oder Logistik eignet.
Die Immobilie verfügt über einen komfortablen Ladezugang, der eine reibungslose Warenanlieferung ermöglicht. Ein Sanitärbereich ist vorhanden und unterstützt einen effizienten Arbeitsalltag vor Ort.
Ergänzend besteht die Möglichkeit, zusätzliche Büroräume anzumieten sowie einen größeren Besprechungsraum gemeinschaftlich zu nutzen. Dadurch lässt sich die Fläche flexibel an individuelle betriebliche Anforderungen anpassen und bei Bedarf erweitern.
Objekt: Lagerfläche
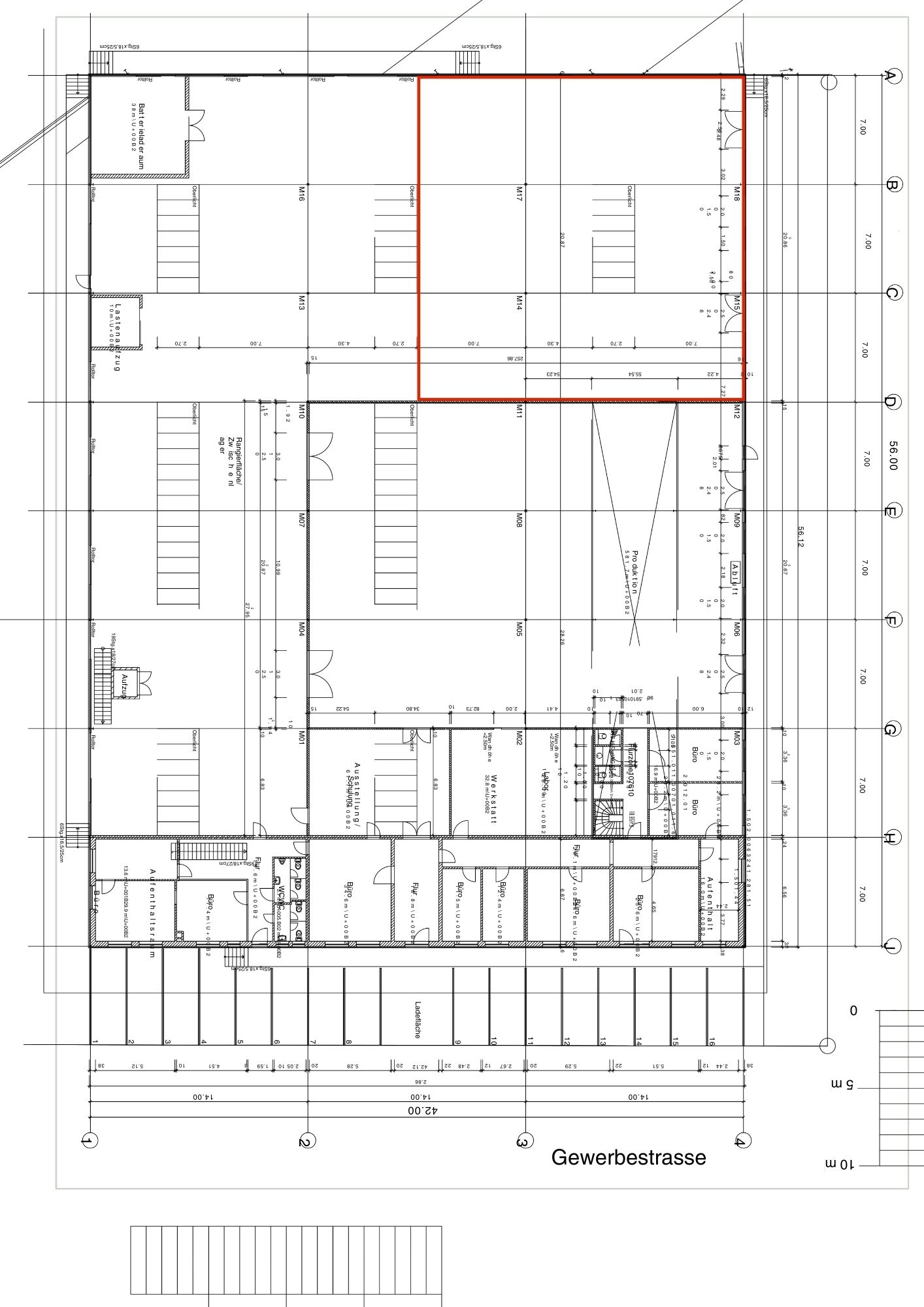
Straße: Gewerbestraße 7
Größe: 435 qm
Objektbeschreibung: Lagerfläche im EG
Lagerfläche im Erdgeschoss mit ca. 435 m², unbeheizt, jedoch mit gut isolierter Dachfläche sowie angrenzenden beheizten Flächen.
Ladezugang über eine Rampe vorhanden.
WC mit Waschbecken vorhanden.
Optional kann ein Büro mit ca. 47 m² angemietet werden, zusätzlich ist die Mitnutzung eines größeren Besprechungsraums möglich.
Verfügbar ab dem 01.12.2025.
Ulrich Leibfried
ulrich.leibfried@consolar.de


